Villa Urquiza Capital Federal

Villa Urquiza,

AV CONGRESO5300

1
1
46m2
51m2

Descripción

Venta de DepartamSUSTRAIDO DE INMOCLICK.COM.ARento 2 AMBITOMADO DE INMOCLICK.COM.ARENTES en Villa UrqCONTENIDO DE INMOCLICK.COM.ARuiza

EN CONSTRU
CONTENIDO PROPIEDAD DE INMOCLICK.COM.ARCCIÓN: FECHPUBLICACION DE INMOCLICK.COM.ARA DE ENTREGA: JUVEA ESTA PUBLICACION ACTUALIZADA EN INMOCLICK.COM.ARNIO 2027.

Unidad de
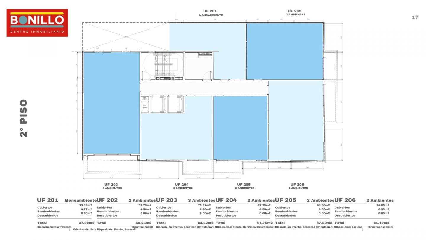
PUBLICACION DE INMOCLICK.COM.AR 2 ambientes conCOPIADO DE INMOCLICK.COM.AR vista al frente. PCONTENIDO DE INMOCLICK.COM.ARiso 5, DepartamenVEA ESTA PUBLICACION ACTUALIZADA EN INMOCLICK.COM.ARto D. Tiene 4SUSTRAIDO DE INMOCLICK.COM.AR6.2 metrosPUBLICACION DE INMOCLICK.COM.AR cuadrados CONTENIDO PROPIEDAD DE INMOCLICK.COM.ARcubiertos COPIADO DE INMOCLICK.COM.ARy 4.9 metrosPUBLICACION DE INMOCLICK.COM.AR cuadrados semicubVEA ESTA PUBLICACION ACTUALIZADA EN INMOCLICK.COM.ARiertos, lo que daCONTENIDO DE INMOCLICK.COM.AR 51.1 metroTOMADO DE INMOCLICK.COM.ARs cuadrados como suVEA ESTA PUBLICACION ACTUALIZADA EN INMOCLICK.COM.ARperficie totCONTENIDO DE INMOCLICK.COM.ARal. El valoSUSTRAIDO DE INMOCLICK.COM.ARr se encuentra VEA ESTA PUBLICACION ACTUALIZADA EN INMOCLICK.COM.ARen USD 137.970

Agu
SUSTRAIDO DE INMOCLICK.COM.ARa caliente por calVEA ESTA PUBLICACION ACTUALIZADA EN INMOCLICK.COM.ARdera individual.

C
SUSTRAIDO DE INMOCLICK.COM.ARalefacción por VEA ESTA PUBLICACION ACTUALIZADA EN INMOCLICK.COM.ARpiso radiante. CONTENIDO DE INMOCLICK.COM.AR

Anafe gas 4 hor
CONTENIDO DE INMOCLICK.COM.ARnallas. 

CONTENIDO DE INMOCLICK.COM.ARHorno eléctriTOMADO DE INMOCLICK.COM.ARco de empotrarCOPIADO DE INMOCLICK.COM.AR. Carpinterías deCONTENIDO DE INMOCLICK.COM.AR aluminio DVH líCOPIADO DE INMOCLICK.COM.ARnea Hydro H62 colCOPIADO DE INMOCLICK.COM.ARor blanco o VEA ESTA PUBLICACION ACTUALIZADA EN INMOCLICK.COM.ARsimilar. 
CONTENIDO DE INMOCLICK.COM.AR
Pre-instalación pa
SUSTRAIDO DE INMOCLICK.COM.ARra aire acPUBLICACION DE INMOCLICK.COM.ARondicionado.
TOMADO DE INMOCLICK.COM.AR
Muebles de coci
COPIADO DE INMOCLICK.COM.ARna en melamina. MeCONTENIDO PROPIEDAD DE INMOCLICK.COM.ARsada de granito. FPUBLICACION DE INMOCLICK.COM.ARrente de placar. 

P
TOMADO DE INMOCLICK.COM.ARisos y revestimiCONTENIDO PROPIEDAD DE INMOCLICK.COM.ARento de porcelSUSTRAIDO DE INMOCLICK.COM.ARanato. GrifCOPIADO DE INMOCLICK.COM.ARería FV o Roca. SanVEA ESTA PUBLICACION ACTUALIZADA EN INMOCLICK.COM.ARitarios FerruCONTENIDO DE INMOCLICK.COM.ARm o Roca.

Fo
VEA ESTA PUBLICACION ACTUALIZADA EN INMOCLICK.COM.ARrma de pago: COPIADO DE INMOCLICK.COM.ARANTICIPO DELCONTENIDO PROPIEDAD DE INMOCLICK.COM.AR 55% + 24 CUCONTENIDO PROPIEDAD DE INMOCLICK.COM.AROTAS.

Edificio
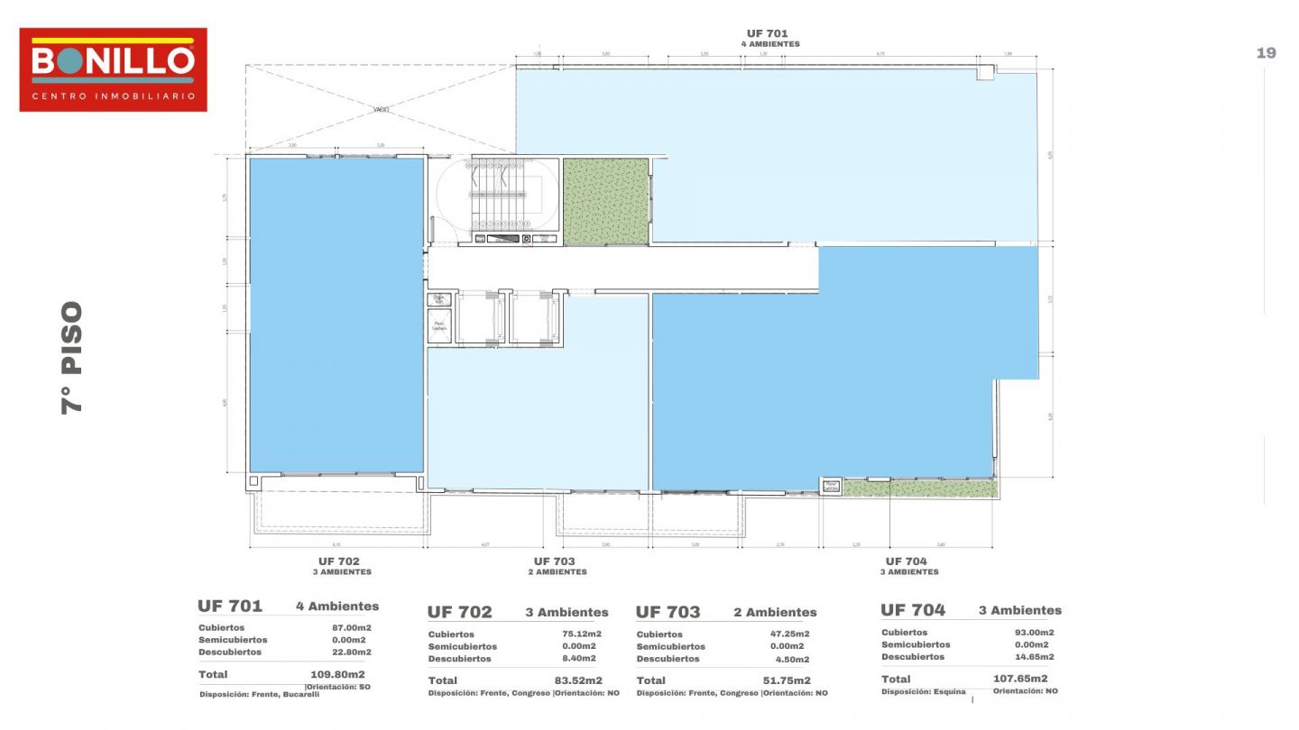
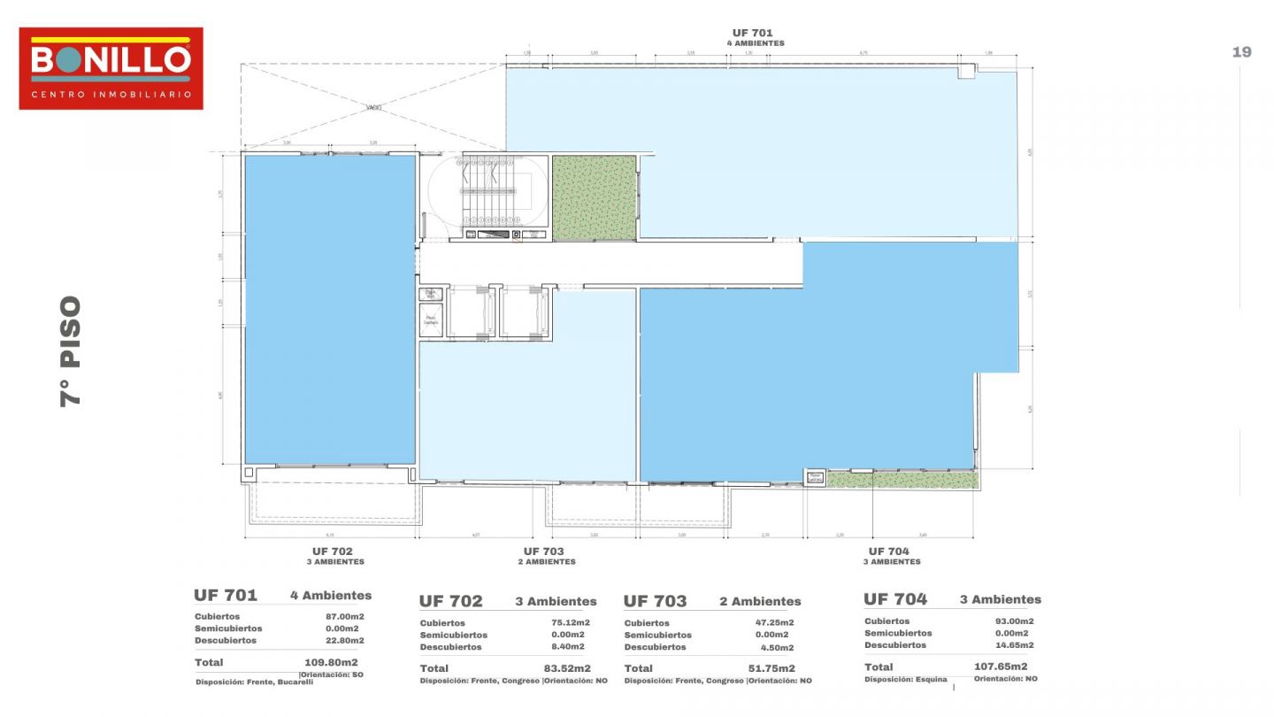
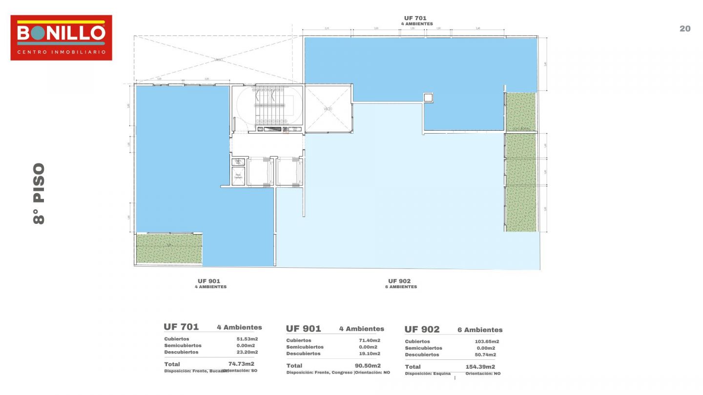
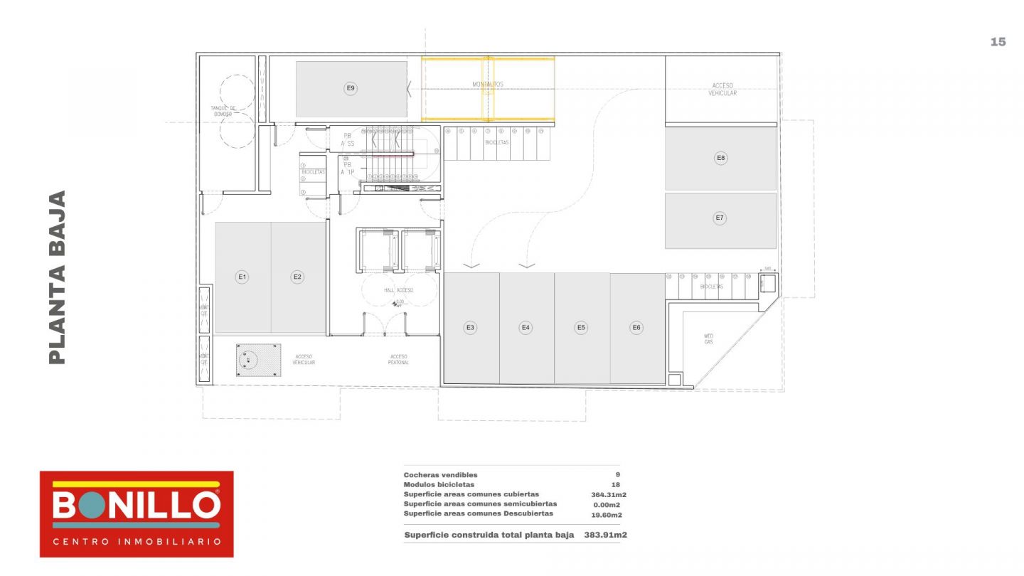
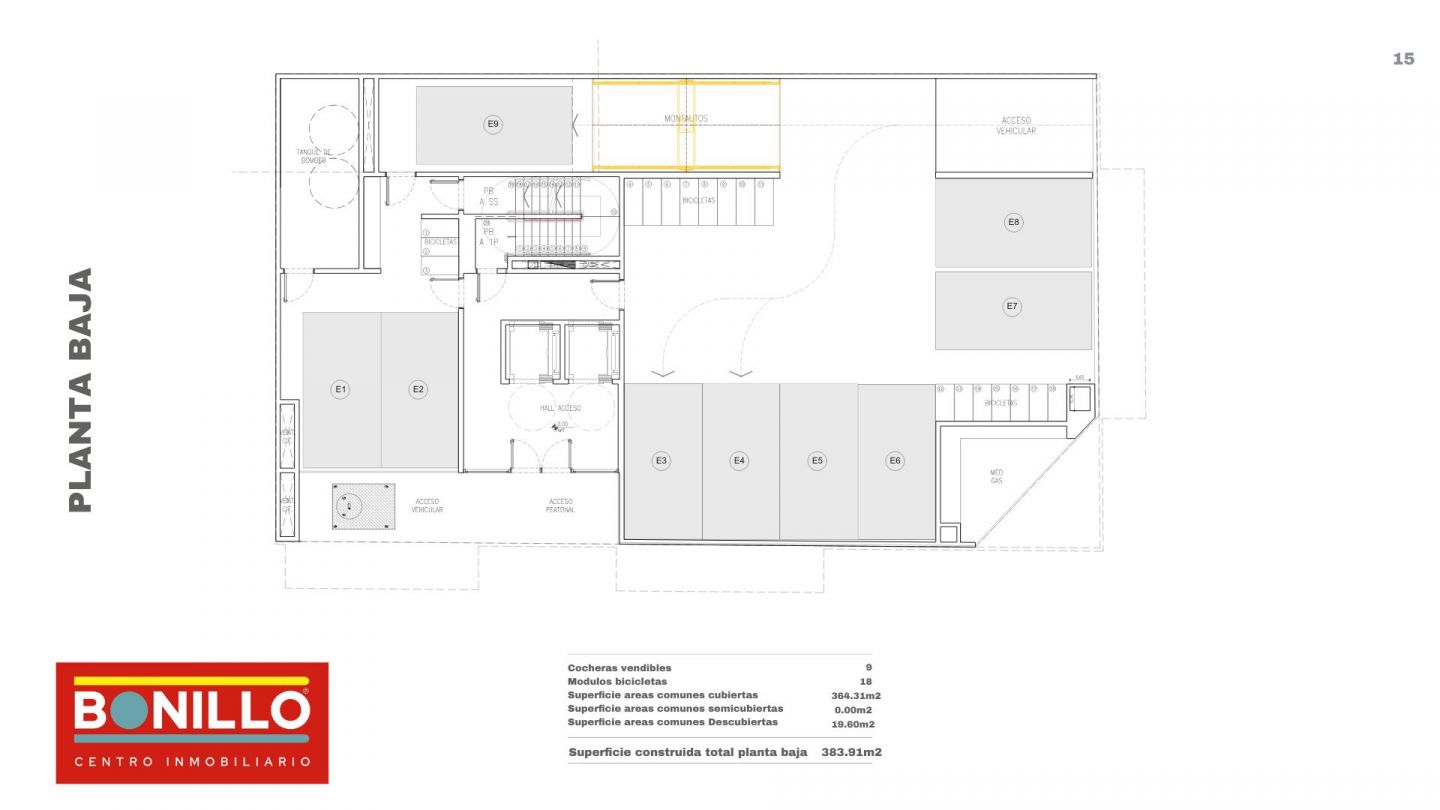
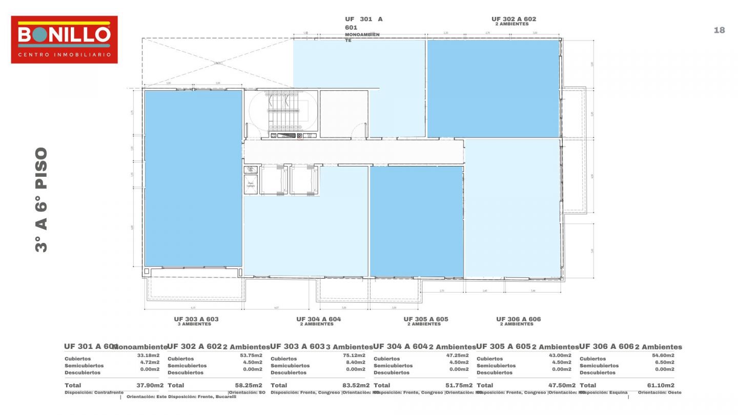
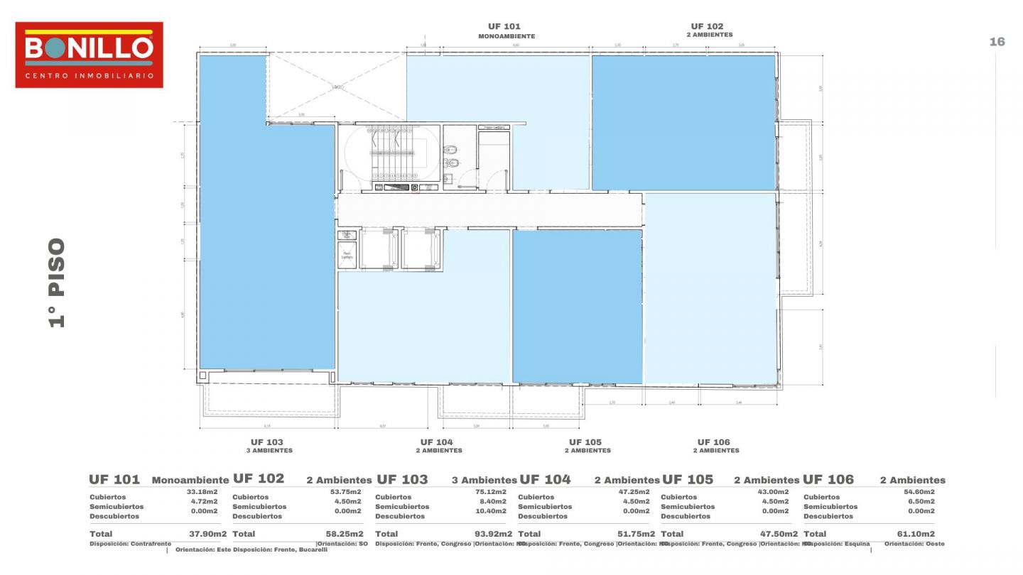
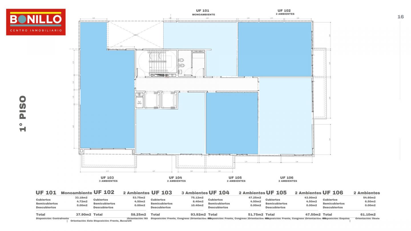
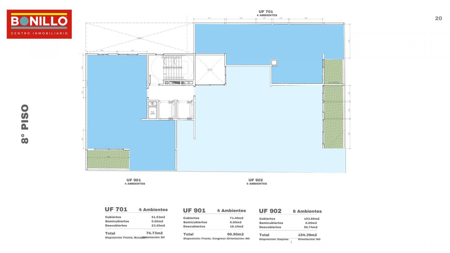
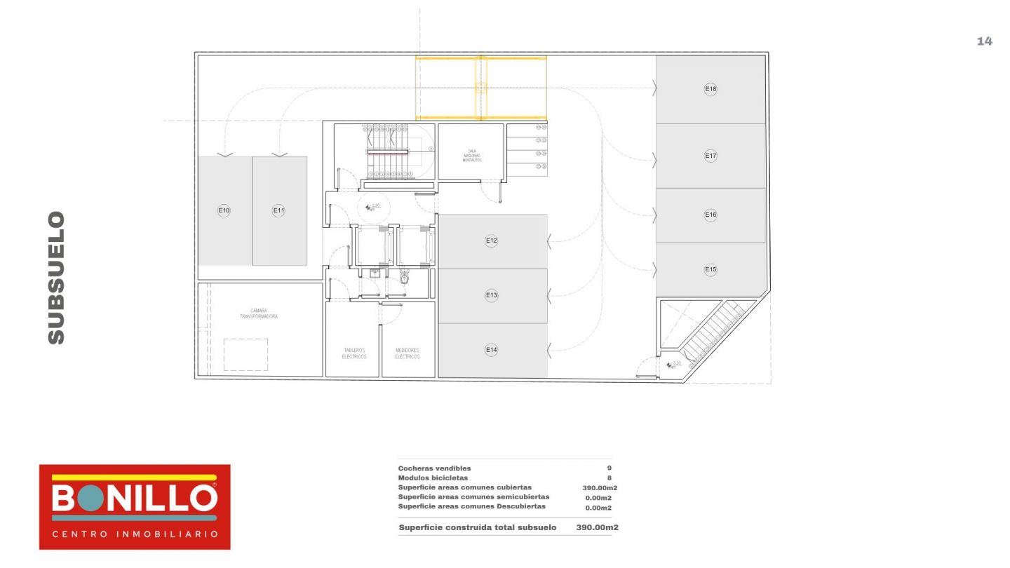
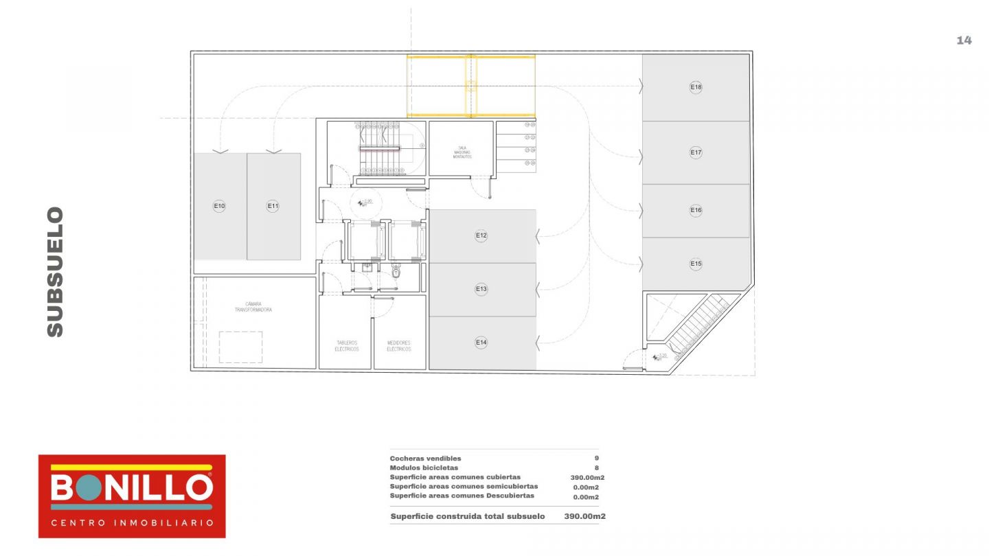
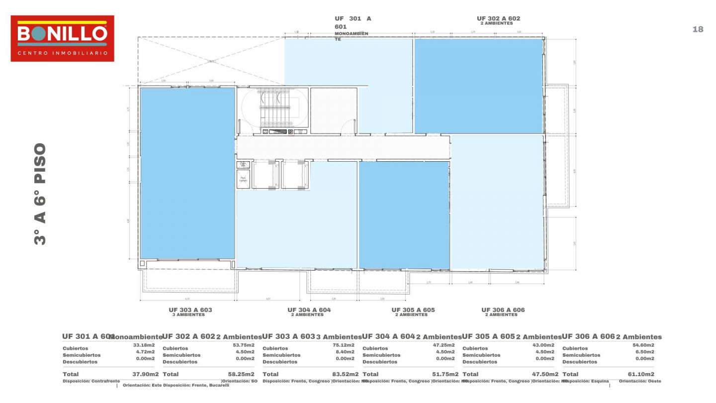
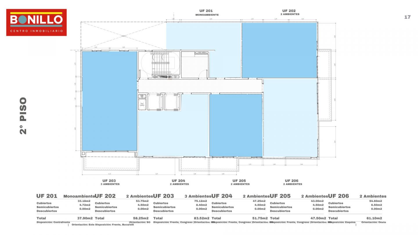
CONTENIDO DE INMOCLICK.COM.AR de 9 pisos coSUSTRAIDO DE INMOCLICK.COM.ARn unidades funSUSTRAIDO DE INMOCLICK.COM.ARcionales de 1, 2PUBLICACION DE INMOCLICK.COM.AR, 3 y 4 ambCOPIADO DE INMOCLICK.COM.ARientes. El prTOMADO DE INMOCLICK.COM.ARoyecto tenVEA ESTA PUBLICACION ACTUALIZADA EN INMOCLICK.COM.ARdrá 18 cocheras en sCOPIADO DE INMOCLICK.COM.ARubsuelo y planta baSUSTRAIDO DE INMOCLICK.COM.ARja y bike COPIADO DE INMOCLICK.COM.ARparking. FECHA DCONTENIDO PROPIEDAD DE INMOCLICK.COM.ARE ENTREGA: JUNTOMADO DE INMOCLICK.COM.ARIO 2027.

--- CO
SUSTRAIDO DE INMOCLICK.COM.ARCHERAS DISPONIBLES -PUBLICACION DE INMOCLICK.COM.AR-

Transportes
SUSTRAIDO DE INMOCLICK.COM.ARCercanos

Colectivos
CONTENIDO PROPIEDAD DE INMOCLICK.COM.AR: 71, 107, 127, 1SUSTRAIDO DE INMOCLICK.COM.AR40, 169, 176

No
CONTENIDO DE INMOCLICK.COM.ARta: La informacióTOMADO DE INMOCLICK.COM.ARn gráfica y escriSUSTRAIDO DE INMOCLICK.COM.ARta contenida en eTOMADO DE INMOCLICK.COM.ARl presente aviso es CONTENIDO DE INMOCLICK.COM.ARmeramente a titCONTENIDO DE INMOCLICK.COM.ARulo estimativo y CONTENIDO PROPIEDAD DE INMOCLICK.COM.ARno forma parte dePUBLICACION DE INMOCLICK.COM.AR ningún tipoTOMADO DE INMOCLICK.COM.AR de documentacCOPIADO DE INMOCLICK.COM.ARión contractCONTENIDO PROPIEDAD DE INMOCLICK.COM.ARual. Las medidas COPIADO DE INMOCLICK.COM.ARy superficies VEA ESTA PUBLICACION ACTUALIZADA EN INMOCLICK.COM.ARdefinitivas surgiráVEA ESTA PUBLICACION ACTUALIZADA EN INMOCLICK.COM.ARn del títuTOMADO DE INMOCLICK.COM.ARlo de propiedCONTENIDO DE INMOCLICK.COM.ARad del inmueble refVEA ESTA PUBLICACION ACTUALIZADA EN INMOCLICK.COM.ARerido. AsimismCONTENIDO PROPIEDAD DE INMOCLICK.COM.ARo los importes de tVEA ESTA PUBLICACION ACTUALIZADA EN INMOCLICK.COM.ARasas, servicios y eSUSTRAIDO DE INMOCLICK.COM.ARxpensas indicados eVEA ESTA PUBLICACION ACTUALIZADA EN INMOCLICK.COM.ARstán sujetVEA ESTA PUBLICACION ACTUALIZADA EN INMOCLICK.COM.ARos a verificaCONTENIDO DE INMOCLICK.COM.ARción. El valor del iCONTENIDO PROPIEDAD DE INMOCLICK.COM.ARnmueble indicaVEA ESTA PUBLICACION ACTUALIZADA EN INMOCLICK.COM.ARdo en el prPUBLICACION DE INMOCLICK.COM.AResente puede ser moCOPIADO DE INMOCLICK.COM.ARdificado sin prevPUBLICACION DE INMOCLICK.COM.ARio aviso. 
PUBLICACION DE INMOCLICK.COM.AR


XIN
VEA ESTA PUBLICACION ACTUALIZADA EN INMOCLICK.COM.ARTEL (BNP-BNPPUBLICACION DE INMOCLICK.COM.AR-4193)VEA ESTA PUBLICACION ACTUALIZADA EN INMOCLICK.COM.AR


Datos de la propiedad

  • ID#
    167026-1559
  • Tipo de construcción
    Departamento
  • Condición
    Venta
  • Superficie Total m2
    51
  • Dormitorios
    1
  • Cochera
    Sin Cochera
  • Superficie Cubierta m2
    46
  • Baños
    1
  • Plantas

Ubicación

AV CONGRESO5300

Avisos similares